Aguarde...

Descrição

Lote 02: Comercial ou Residencial em Porto Alegre/RS: Casa na Av. Bento Gonçalves 140,47m2 + Terreno de Esquina 302,40m2


Av. Bento Gonçalves, 6751 - Agronomia, Porto Alegre - RS, 91540-000, Brasil

Link Mapa Av. Bento Gonçalves, 6751 - Agronomia


Matrícula n° 177.492 do Registro de Imóveis da 3ª Zona de Porto Alegre, o imóvel possui as seguintes características e histórico:


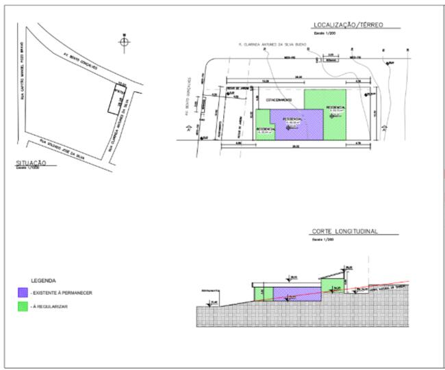
IMÓVEL: Localização: Avenida Bento Gonçalves, nº 6751, Porto Alegre/RS. Tipo: Casa 01, em alvenaria, com um pavimento. Áreas: 140,47m2. Área de Terreno Superficial: 302,40m². Medidas: Frente (Norte): 10,50m, no alinhamento da Avenida Bento Gonçalves. Leste: 28,28m, divisa com a Rua Clarinda Antunes da Silva Bueno (forma esquina). Fundos (Sul): 10,50m (mesma medida da frente), divisa com a Casa 02. Oeste: 29,32m, divisa com parte da propriedade de João Antônio da Silva.

Ocupação: Edificação, jardim e pátio. Quarteirão: Avenida Bento Gonçalves e Ruas Clarinda Antunes da Silva, Soldado José da Silva e Capitão Manoel Pozo Bravo. Medidas: 10,50m de frente (Av. Bento Gonçalves) por 50,80m de extensão. 

Inscrição Municipal (IPTU): XXXX


Avaliação: R$435.000,00 

Valor Mínimo: R$299.000,00 (-31%)


Informações Comitente: Esse imóvel é de esquina e tem 2 casas construídas no terreno, sendo que uma delas (a dos fundos) está com a estrutura comprometida e deverá ser demolida. Este imóvel faz parte de um “condomínio” com o terreno de fundos, visto que ambas as propriedades tem áreas pequenas demais para poderem ter matrículas individualizadas. Planta de regularização, Projeto aprovado para uso Comercial.


Imóvel Desocupado e Livre de Débitos.


Condições Gerais: a) Bem vendido no estado em que se encontra. b) Lances ofertados são irrevogáveis e irretratáveis. c) Fotos meramente ilustrativas. d) Reservamo-nos o direito de erros de digitação.




Atenção e Aviso Legal:

Lances efetuados são Irrevogáveis, Irretratáveis e significam compromisso assumido perante esta Licitação Pública nos termos da Lei Federal. Todos os lances efetuados são de sua inteira responsabilidade e ficarão registrados no sistema com data e horário que forem lançados, inclusive os lances automáticos programados pelo usuário da Plataforma. O Lance é uma ordem de pagamento à vista, excepcionalmente para o arremate Online, será aceito o prazo de até 12 (doze) horas para a comprovação do pagamento. Caso não ocorra, o lote será repassado ao segundo melhor lance ou aos demais, sucessivamente, até a confirmação. O devedor será encaminhado à cobrança do valor inadimplido com acréscimos, multas, restrição à conta do sistema, impedimento de negociar com o Poder Público por até 2 (dois) anos, cobranças extrajudiciais e judiciais, além de protestos e inscrições em cadastros de devedores. Leia com atenção todos os termos do Edital de Venda Pública.


Localização

    Compartilhar
#10186 - Lote 2
R$ 299.000,00 Lance Inicial

R$ 435.000,00

Avaliação

Comercial ou Residencial em Porto Alegre/RS: Casa na Av. Bento Gonçalves 140,47m2 + Terreno de Esquina 302,40m2

Porto Alegre / RS 31/03/2026 17:00

Quer saber mais?

Deseja vender, comprar ou indicar?

Magistrados, Advogados, Administradores Judiciais e de Empresas, entrem em contato conosco.

WhatsApp

Proximidades

Localizados perto de uma área que você pesquisou.

A solução inteligente, prática e inovadora para gestão, compra e venda de ativos através de plataforma tecnológica de catalisação de negócios em ofertas públicas oficiais.

Time de especialistas acumula mais de 25 anos de experiência em desenvolvimento de soluções tecnológicas e na execução de Leilões Judiciais e Extrajudiciais, com negócios no Brasil e no exterior. Por mais de duas décadas, temos estabelecido relacionamentos sólidos e duradouros com centenas de investidores corporativos e milhares de clientes.

78
whatsapp